ČO / kompletná rekonštrukcia 3-izbového bytu
KTO / boris schulz, juraj murín
KDE / bratislava
AKO / projekt interiéru
KTO / boris schulz, juraj murín
KDE / bratislava
AKO / projekt interiéru
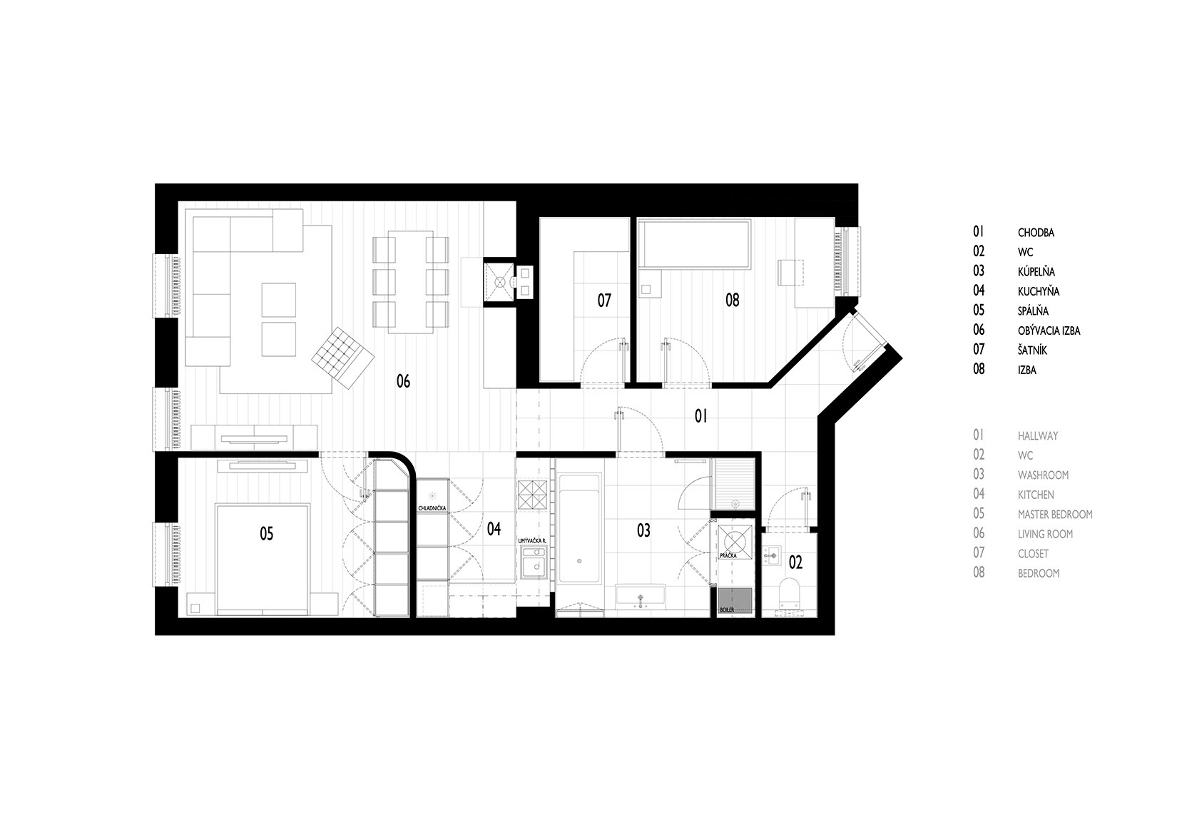
SVK / Základom projektu prestavby bytu v centre Bratislavy bolo preriešenie dispozície na základe požiadaviek investora. Do stredu dispozície návrh priniesol prirodzené osvetlenie, dispozícia sa vyčistila od zbytočných komplikácií a jednotlivé funkčné priestory boli jasne zadefinované (plošne aj vzťahom k naväzujúcim priestorom). Základom spolupráce architekta a investora bola častá a vecná diskusia. V prípade kolízie požiadaviek boli predložené variantné riešenia, z ktorých si investor vždy vedel vybrať.
EN / center of Bratislava was redesigning its disposition according to the investor’s requirements. We brought natural lighting to the center of the layout, the layout was purified from unnecessary complications and individual functional areas were clearly defined (their respective sizes and relationship to related areas). The basis for cooperation of the architect and the investor was frequent and substantive debate. In the event of conflicting interests, several options were presented from which the investor was always able to choose.