ČO / interiér reštauračnej prevádzky
KTO / juraj murín
KDE / bratislava
AKO / architektonická štúdia, realizačný projekt
KTO / juraj murín
KDE / bratislava
AKO / architektonická štúdia, realizačný projekt
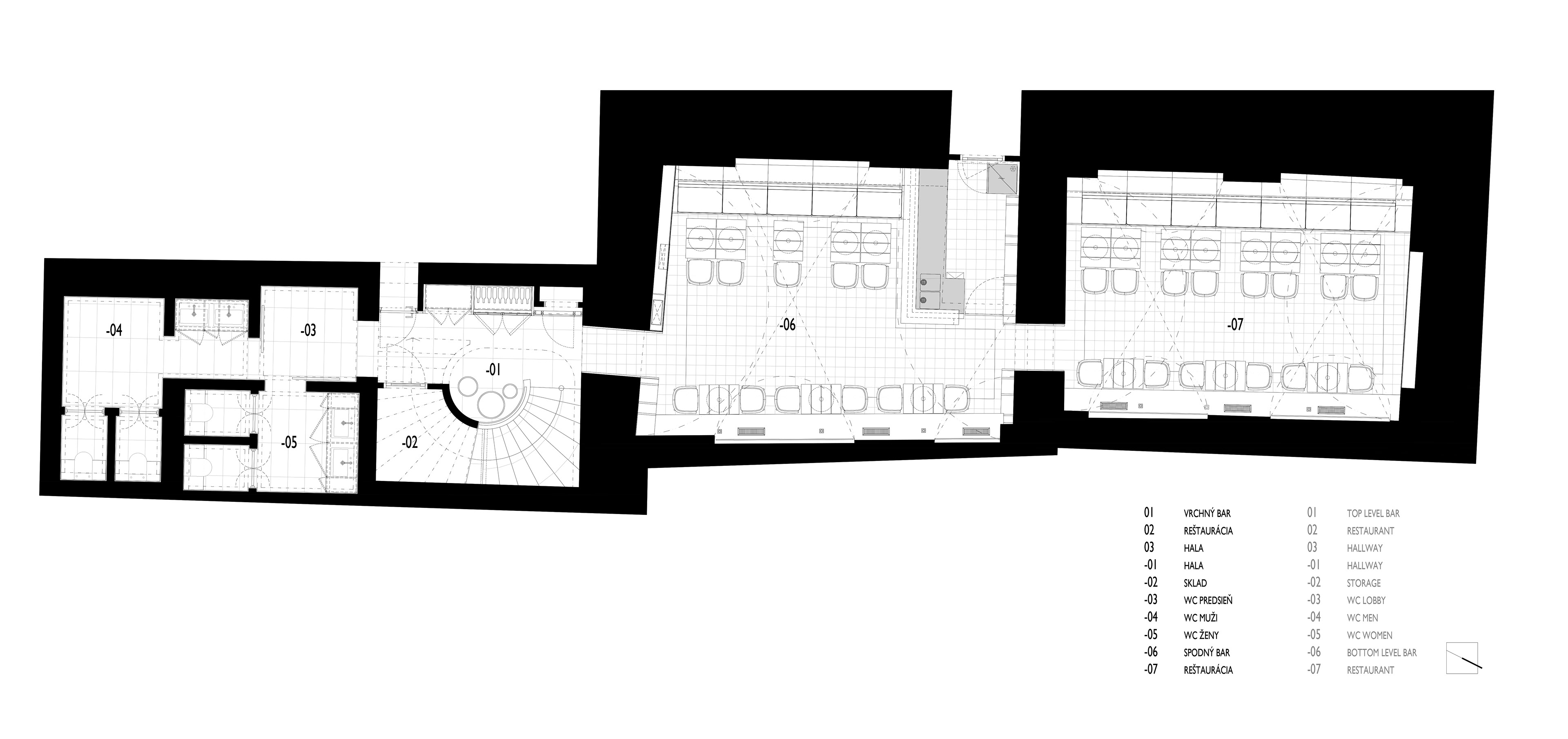
SVK / Druhá prevádzka reštaurácie Flamender v centre Bratislavy bola pripravovaná súbežne s prevádzkou v Polus City Center. Zdieľajú základnú filozofiu aj vizuálne stvárnenie, druhý Flamender je však situovaný v inom prostredí a toto odráža aj koncepčný návrh interiéru. Priestor na bratislavskom korze po bývalých prevádzkach “Upside-Down” a “The Pub”, má pozdĺžny charakter a klenbovitý suterén. Priestorovo-funkčný ako aj vizuálny koncept rešpektuje charakter priestoru a vychádza z filozofie značky - lokálna výroba, tradícia, genius loci starej Bratislavy. Reštaurácia je delená do viacerých zón, ktoré ponúkajú stupňujúcu hladinu súkromia. Výber materiálov vychádza z predošlej prevádzky a ďalej ho rozvíjá - materiály so známkami opotrebovania, priemyslený charakter osvetlenia, masívne drevo v kombinácii s funkčno-dekoratívnymi kovovými prvkami v čiernej farbe, bar s výrazným akcentovaním medenými inštalačnými trubkami a dekoratívny zavesený podhľad - drevený rám s prevliekanými jutovými povrazmi.
EN / The second Flamender restaurant in the center of Bratislava has been in development along with with the Polus City Center restaurant. They share the basic philosophy and the visual style, but the second Flamender is set in a different setting and this is reflected in the design concept of the interior. Former "Upside-Down" and "The Pub" premises on Bratislava corso, where the restaurant is located offer a longitudinal character and a vault basement. The layout concept and visual style respect the character of the space and follow the philosophy of the brand - local production, tradition, genius loci of old Bratislava. The restaurant is divided into several zones, offering the increasing level of privacy. The choice of materials is based on the Polus City restaurant and develops it further - materials with signs of wear, industrial character lighting, solid wood combined with functional and decorative metal elements in black, bar with a distinctive accentuating (copper plumbing tubes) and a decorative suspended ceilings - wooden frame with attached jute ropes.
zdroj: www.flamender.sk
zdroj: www.flamender.sk